Perlman Architects

Previous slide
Next slide

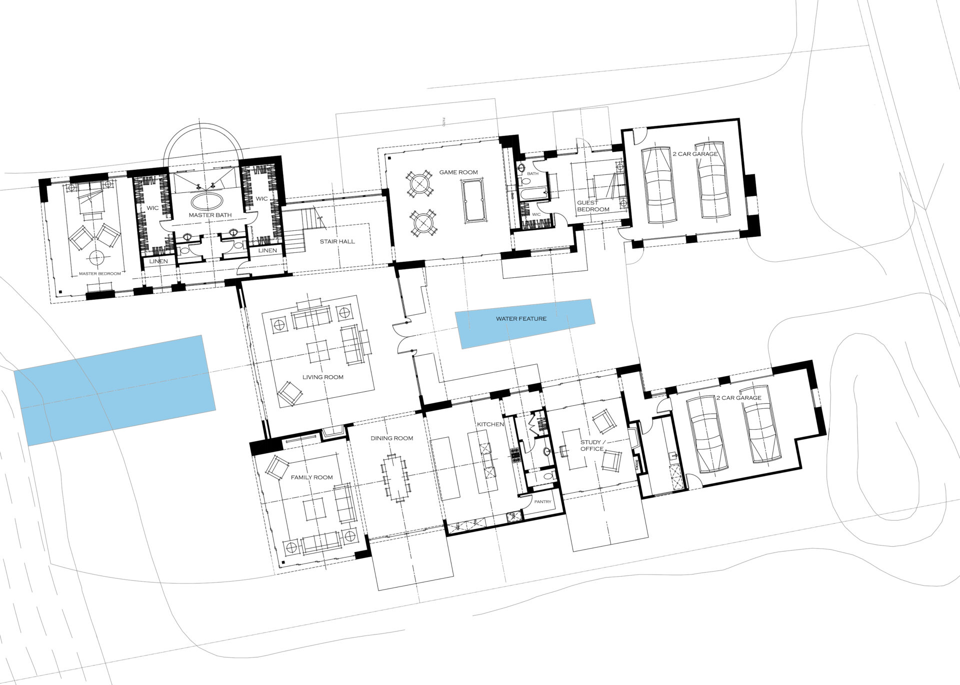
Cohen Residence

The Summit, Las Vegas, NV
Client: Eric Cohen
This two-story custom home offers 4 Bedrooms, a Loft, an Office, 4 1/2 Baths, and a 4 car Garage. It has a 5,495 SF first floor and 1,135 SF second floor for a total of 6,630 SF livable. The home was designed for modern living and to capture spectacular city views.